< Ga terug

Oude Vismarkt 23A

(3-kamer appartement), Zwolle

€ 1231,80 p.m. exclusief

Onder optie
Woonoppervlakte
54 m²
Aantal kamers
3
Aantal slaapkamers
1
Woonlagen
1


Omschrijving

Wonen in hartje Zwolle? Dit is jouw kans!

Per 1 mei komt dit prachtige appartement beschikbaar aan de gezellige Oude Vismarkt. Deze sfeervolle winkelstraat ligt parallel aan de Diezerstraat en biedt een gevarieerd aanbod aan winkels, horecagelegenheden en dienstverleners. Ook supermarkten, de bioscoop en het station bevinden zich op loopafstand. Hier woon je dus midden in het bruisende centrum, met alle voorzieningen binnen handbereik.

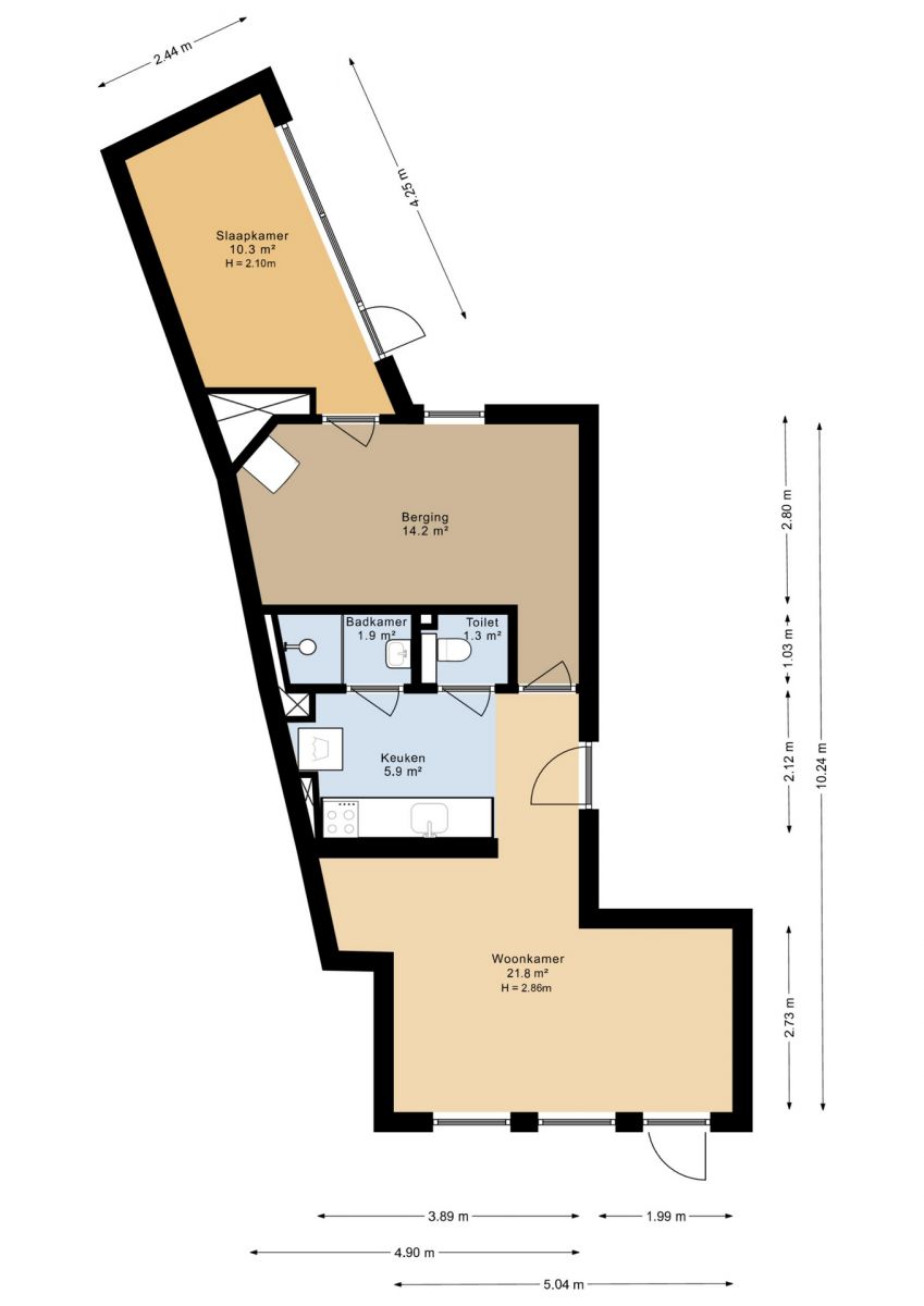
Indeling
Via de gezamenlijke entree en trapopgang bereik je het appartement op de eerste verdieping. Bij binnenkomst stap je direct de ruime en lichte woonkamer met open keuken binnen. De grote raampartijen zorgen voor een aangename lichtinval en geven het geheel een warme uitstraling.

De keuken is uitgerust met een kookplaat, koel-vriescombinatie en afzuigkap. Vanuit de woonkamer heb je toegang tot het ruime balkon, waar je kunt genieten van een mooi uitzicht.

Aan de achterzijde van de woning bevindt zich een extra kamer, ideaal in te richten als werk- of studeerkamer. Vanuit deze ruimte bereik je de aparte slaapkamer.

De badkamer is voorzien van een douchecabine, wastafel en handdoekradiator. Daarnaast is er een separaat toilet aanwezig. Extra pluspunt: je kunt gebruikmaken van een gezamenlijk dakterras aan de achterzijde van het complex.

Kortom: een sfeervol en praktisch ingedeeld appartement op een toplocatie in Zwolle!

Aan de plattegrond kunnen geen rechten worden ontleend.

HUURPRIJS

Kale huur € 1231,80
Servicekosten € 110,00
Gas, water, licht € 50,00
Totaal € 1391,80

INKOMENSEIS
De inkomenseis voor deze woning is 3 keer de kale huur aan bruto-inkomen. 

BETALING
De waarborgsom voor het huren van deze woonruimte staat gelijk aan een maand huur en bij het tekenen van het contract dient de eerste maandhuur vooruitbetaald te worden.

GEÏNTERESSEERD?
Maak gratis een account aan op onze website om te reageren. De bezichtigingen worden toegewezen via willekeurige loting. Je ontvangt bericht of je bent ingeloot voor een bezichtiging.

HUIS VAN VERHUUR
Huis van verhuur biedt transparantie in de woonbemiddeling tussen huurder en verhuurder. Met een groot aanbod in huurwoningen zoals nette kamers, comfortabele studio's, ruime appartementen en royale vrijstaande woningen op toplocaties in noord- en midden Nederland is Huis van Verhuur de ideale speler voor het huren van woonruimte.

Details

Status: Beschikbaar
Wijk: Centrum
Categorie: Appartement
Bestaand / nieuwbouw: Bestaand
Interieur: Gestoffeerd
Huurprijs: € 1231,80
exclusief
Woonoppervlakte: 54 m²
Aantal kamers: 3
Aantal slaapkamers: 1
Woonlagen: 1
Ligging: Bovenwoning
Keuken: Eigen
Douche: Eigen
Toilet: Eigen
Buiten: Eigen
Huisdieren: Niet toegestaan
Stellen: Toegestaan
Aanvaarding: 01-05-2026
Min. huurperiode: 12 Maanden
Isolatie: Goed
Energielabel: A
Verwarming: Gas

Garage / Berging: Nee
Tuin: Geen tuin
Bouwjaar:

Copyright © 2026. All rights reserved. Voorwaarden | Privacy Policy